Waltonbrook - new homes in Burton on the Wolds - Owl Homes

ASHBOURNE - Plot 32

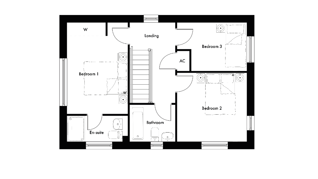
3-bedroom home

COMING SOON

Thursday to Monday, 10am - 5pm

01509 440 145 waltonbrook@owlhomes.co.uk

1,009 sq. ft.
A generous 3-bedroom family home with open-plan kitchen-diner, separate utility and spacious lounge - perfect for busy households. This home also includes French doors to the garden and an en suite to the master bedroom.

Key features:
  • Open-plan kitchen with dining area
  • Separate utility room off the kitchen
  • Spacious living room with French doors to the garden
  • En suite to the master bedroom
  • Two car parking spaces

Waltonbrook, Burton on the Wolds Floorplans

KITCHEN AND UTILITIES

  • French doors onto rear garden
  • Symphony kitchen with square edge worktops
  • Bosch integrated double oven
  • Bosch induction hob
  • Integrated NEFF canopy extraction hood
  • Bosch low-frost integrated fridge freezer
  • Ideal boiler

BEDROOMS

  • USB sockets to master suite and kitchen
  • Slimline TV point to the master suite

BATHROOMS, EN SUITES AND CLOAKROOMS

  • Vent Axia mechanical extract ventilation
  • Roca sanitaryware
  • Bristan Vertico thermostatic shower (to shower enclosures)
  • Bristan basin and bath taps
  • Heated towel radiator to bathroom and master en suite
  • Porcelanosa wall tiling
  • Shaver socket to family bathroom and master en suite

EXTERNAL DETAILS

  • External up/down lights to the front
  • EV chargers
  • Solar (PV) panels

SECURITY & PEACE OF MIND

  • Carbon monoxide alarm with battery back up
  • Smoke detector with battery back up
  • Heat detector alarm with battery back up
  • 10 year NHBC warranty

Enquire about Plot 32 - Waltonbrook, Burton on the Wolds

I'm happy to receive future updates from Owl Homes