The Sibson, Willowbank Meadows, Alderton - Plot 47

THE SIBSON - Plot 47

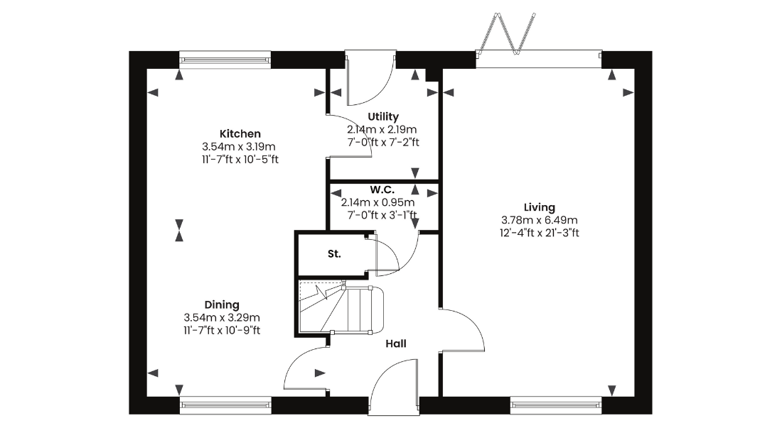
4-bedroom home

WEST-FACING GARDEN

If you enjoy spending long, sunny afternoons and evenings in the garden, this plot is for you - an ideal home for entertaining, BBQs, and relaxing after work.

1,345 sq. ft.

The Sibson is a stylish four-bedroom detached home designed for modern family life. The open-plan kitchen, dining, and family area with bi-fold doors onto the garden creates a bright, social hub, while a separate utility and downstairs WC add practical convenience.


Upstairs, three double bedrooms and a single bedroom provide space for family, guests, or a home office, with the master suite enjoying a private en suite. A detached garage and two parking spaces complete this home, which also features energy-efficient solar panels and EV charging points.


Ready to move in Spring 2026, The Sibson offers a perfect mix of style, space, and comfort in the welcoming Willowbank Meadows community.


Key features that make this home:
  • Open-plan kitchen with integrated appliances
  • Separate utility room with  rear door access
  • Living room with bi-fold doors onto rear garden
  • Three double bedrooms and one single bedroom
  • En suite to the master bedroom
  • Downstairs WC 
  • Detached garage plus two parking spaces
This home will be ready to move into in Spring 2026. Book your appointment today to discuss options and availability.

WEST-FACING GARDEN

If you enjoy spending long, sunny afternoons and evenings in the garden, this plot is for you - an ideal home for entertaining, BBQs, and relaxing after work.

Willowbank Meadows, Alderton Floorplans

KITCHEN AND UTILITIES

  • Bi-fold doors onto rear garden
  • Symphony kitchen with square edge worktops
  • Bosch integrated double oven
  • Bosch ceramic hob
  • Integrated NEFF canopy extraction hood
  • Low-frost integrated fridge freezer
  • Integrated dishwasher
  • Ideal boiler

BEDROOMS

  • USB sockets to master suite and kitchen
  • Slimline TV point to the master suite

BATHROOMS, EN SUITES AND CLOAKROOMS

  • Vent Axia mechanical extract ventilation
  • Roca sanitaryware
  • Bristan Vertico thermostatic shower (to shower enclosures)
  • Bristan basin and bath taps
  • Heated towel radiator to bathroom and master en suite
  • Porcelanosa wall tiling

EXTERNAL DETAILS

  • External up/down lights to the front
  • EV chargers
  • Solar (PV) panels

SECURITY & PEACE OF MIND

  • Carbon monoxide alarm with battery back up
  • Smoke detector with battery back up
  • Heat detector alarm with battery back up
  • 10 year NHBC warranty

Enquire about Plot 47 - Willowbank Meadows, Alderton

I'm happy to receive future updates from Owl Homes